Bornes fixes TALOS

Contrôle et gestion d’accès

BORNES TALOS

Bornes fixes de contrôle d’accès à résistance croissante et élevée en complément des bornes automatiques et manuelles pour voies publiques ou sites privés.

Bornes fixes talos

LES POINTS FORTS DES BORNES TALOS

  • 3 modèles à résistance croissante et élevée : TALOS 94, TALOS M30 et TALOS M50 allant de 250 jusqu'à 2000Kj
  • Particulièrement adaptées pour délimiter des espaces publics ou sites privés (zones d'activité, zones résidentielles), pour contrôler la circulation, interdire le stationnement ou l'accès des véhicules.
  • Hauteur disponible de 530 à 1000 mm selon le modèle
  • Hauteur ajustable pour la TALOS 94, fixe pour la borne TALOS M30 et M50
  • Bandeau lumineux 12 LEDs couleur ambre en option

DOCUMENTS

bornes-talos.pdf

(pdf 1,734.03 Ko)

offre-systemes-controle-acces.pdf

(pdf 7,537.70 Ko)

DESCRIPTIF TECHNIQUE

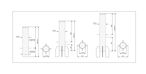
  • TALOS 94 (2 VERSIONS)
    - Hauteur hors sol (mm) : 530 à 800 
    - Longueur (mm) : 1000 
    - Diamètre (mm) : 275 
    - Épaisseur (mm) :  4 et 12 
    - Poids (kg) : 28 pour la version 4 mm d'épaisseur / 80 pour la version 12mm d'épaisseur 
    - Matériau : acier S235JRH 
    - Traitement et finition : cataphorèse et laquage poudre polyester (version acier) ou finition brossée (version inox 304L) 
    - Bande rétroréfléchissante : bande blanche de 80 mm de hauteur
  • TALOS M30 
    - Hauteur hors sol (mm) : 800 
    - Longueur (mm) : 1420 
    - Diamètre (mm) : 275 
    - Épaisseur (mm) : 12 
    - Poids (kg) : 116 
    - Matériau : acier S355J2H 
    - Traitement et finition : cataphorèse et laquage poudre polyester (version acier) ou finition brossée (version inox 304L) 
    - Bande rétroréfléchissante : bande blanche de 80 mm de hauteur
  • TALOS M50 
    - Hauteur hors sol (mm) : 1000 
    - Longueur (mm) : 1930 
    - Diamètre (mm) : 275 
    - Épaisseur (mm) : 20 
    - Poids (kg) : 300 
    - Matériau : acier S355K2H 
    - Traitement et finition : cataphorèse et laquage poudre polyester (version acier) ou finition brossée (version inox 304L) 
    - Bande rétroréfléchissante : bande blanche de 80 mm de hauteur

OPTIONS

  • Bandeau lumineux (12 leds couleur ambre) avec transformateur et cordon de 10ml (prévoir raccordement vers coffret d’alimentation)
  • Finition peinture selon nuancier RAL sur version acier

CARROUSEL PHOTOS

SOLUTIONS ASSOCIÉES

Bornes escamotables et totems

CONTRÔLE ET GESTION D'ACCÈS

Une expertise globale de la conception des matériels et logiciels jusqu’à l’installation des équipements et leur maintenance.

borne-escamotable-electr@

Borne escamotable ELECTR@

Borne électrique de contrôle d’accès à haute résistance pour voies publiques ou privées.

Systèmes de pilotage et équipements de contrôle d'accès

Borne escamotable HERCULE

Borne électrohydraulique à haute résistance évitant les intrusions de véhicules dans les zones sécurisées.

Borne fixe VIGILO

Borne fixe de contrôle d’accès à résistance élevée pour voies publiques ou privées.